つくば市 高見原 第17 1号棟☆☆JR常磐線「牛久」駅までバス15分☆☆ ♪3台駐車可能なカースペース♪
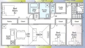
- 区画図
- アクセス
JR常磐線「牛久」駅までバス15分
西口行「高見原中央」 停歩4分
駐車場3台可(ただし、車種に制限あり)
〇おすすめポイント
*3台駐車可能なカースペース♪
*家事動線の良い家♪
*納戸収納で部屋が広々使える♪
*ゴルフバック等の収納に便利な土間収納あり♪
*公営水道・公共下水(汚水・雑排水)・雨水(浸透式)・個別プロパンガス・東京電力
システムキッチン、ユニットバス(換気暖房乾燥機付)、シャワートイレ、シャワードレッサー、人感センサー付玄関灯、TVモニター付きインターフォン、防犯カメラ、全居室ペアガラス
■茎崎第一小学校 1,300m 徒歩約17分 ■高崎中学校 2,000m 徒歩約25分
■TAIRAYA茎崎店 1,015m 徒歩約13分 ■ローソンつくば高見原二丁目店 291m 徒歩約4分
■ヤックスドラッグつくば高見原店 483m 徒歩約6分 ■健正会茎崎アオイ病院 1,300m 徒歩約17分
■茎崎高崎郵便局 1,468m 徒歩約19分
*弊社のコロナ対策*
■現地集合・現地解散
■LINE等によるビデオ通話相談可能です。
■内覧時、内覧後のアルコール等の消毒液の使用可、使い捨てスリッパ等弊社準備で、ご内覧頂きます。
*ご案内時にご提示する資料*(物件資料の他)
■過去の航空写真や、浸水想定、古地図記載の土地の土地調査レポート
■学校や、商業施設までの距離記載の周辺環境レポート
■公示地価等記載の統計調査レポート
*住宅ローンのご提案*
お客様のご事情にあわせて、無理のない返済額、
資金計画のご提示、銀行住宅ローンの申し込みの補助をさせていただきます。
いくらまで借り入れ可能か、無理のない資金計画はどうしたら等のご疑問に
お答えさせて頂きますので、お気軽にご相談くださいませ。
| 価格 | 3,190万円 | 間取り | 4LDK |
|---|---|---|---|
| 土地面積 | 300.02㎡ | 延べ床面積 | 97.20㎡ |
| 向き | 南側約4.37m公道 北東側4.87~5.04m公道 | 築年月 | |
| 所在 | 茨城県つくば市高見原5丁目2番8(地番) | 交通 | JR常磐線「牛久」駅までバス15分 西口行「高見原中央」 停歩4分 |
| 土地権利 | 所有権 | 建物構造 | 木造在来工法2階建 |
| 総戸数 | 3棟 | 建蔽率 | 60% |
| 容積率 | 200% | 施工会社 | (株)アーネストワン |
| 駐車場 | 3台可 | 都市計画 | 市街化調整区域 |
| 用途地域 | 無指定地域 | 地区計画 | |
| 現況 | 空家 | 引渡時期 | 令和 8年 6月 下旬期日指定 |
| 取引態様 | 媒介 | ||
| 備考 | 宅地造成工事規制区域、建物面積に別途ルーフバルコニー約7.29平米有り | ||




